株式会社ヒイラギ建設

  • お気に入り
  • プライバシーポリシー
  • サイトマップ
株式会社ヒイラギ建設 住まいの相談窓口 岡崎店

営業時間 / 9:30~18:30 (定休日/水曜日)

福岡ハイライト貸家 1階

お問い合わせ番号: 11627407

部屋紹介

人気の戸建て賃貸♪

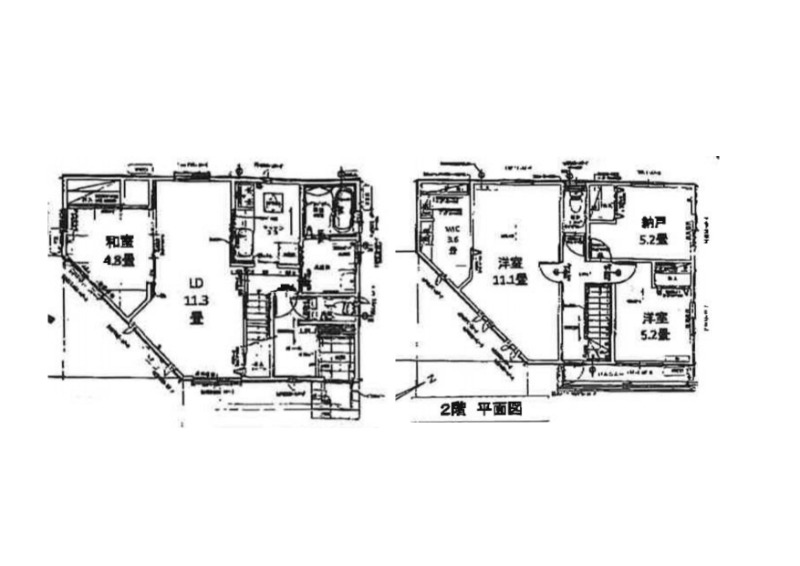
間取り 間取り詳細 面積 賃料 管理費/共益費 敷金(保証金) 礼金 採光向き
3LDK LD 11.3畳
K 畳
洋室 5.2畳
洋室 11.1畳
和室 4.8畳
106.78㎡ 成約済 成約済 成約済 成約済 -

物件写真

物件情報は代表的なお部屋を掲載しております。
建物内の別の間取りでも空室がある場合がございます。
ご指名物件の空室待ちなども受付けておりますので、お電話かメールにてスタッフまでお申付下さい。
※写真や図と現況が異なる場合は現況を優先させていただきます。

部屋紹介

間取り 3LDK
間取り詳細 LD 11.3畳 、 K 畳 、 洋室 5.2畳 、 洋室 11.1畳 、 和室 4.8畳

物件概要・設備

物件種別 一戸建
物件名 福岡ハイライト貸家
物件所在地 愛知県岡崎市福岡町字永池
交通機関
  • JR東海道本線「相見駅」より徒歩30分
  • JR東海道本線「岡崎駅」より徒歩39分
  • 愛知環状鉄道「岡崎駅」より徒歩39分
  • 愛知環状鉄道「六名駅」より徒歩63分
周辺施設
  • ショッピングセンター: ルビットパーク岡崎 距離1898m
  • スーパー: バロー福岡店 距離226m
  • スーパー: Felna福岡店 距離311m
  • スーパー: ドミー福岡店 距離571m
  • コンビニ: セブンイレブン岡崎福岡町店 距離72m
  • コンビニ: ファミリーマート岡崎国正店 距離547m
  • ドラッグストア: ゲンキー福岡町店 距離1163m
  • ドラッグストア: スギ薬局上地1丁目店 距離1709m
特記事項 二人入居可、ファミリータイプ、保証会社利用可
賃料 成約済 管理費/共益費 成約済
敷金 成約済 礼金 成約済
フリーレント - 保険 2年 12100円
間取り 3LDK 面積 106.78㎡
採光向き - 契約形態 普通契約 2年
所在階 1階 入居可能日 2025/5/下
総戸数 1戸 竣工月 2013年4月
建築構造 木造 建物階建 地上2階 
駐車場 駐車料 無料
火災保険 鍵交換代 成約済
保証会社 要加入 /  132 JID
諸経費 成約済
設備 角部屋、フローリング、ベランダ・バルコニー、収納スペース、クローゼット、ウォークインクローゼット、押入れ、バス・トイレ別(別室)、シャワー、脱衣所、トイレ2か所、洗面台、洗面所独立、洗濯機置き場(室内)
備考 ●敷地内に収まるように駐車して下さい。※軽自動車なら2台可。 ●町内会費:実費

近隣マップ

福岡ハイライト貸家へのお問い合わせ

住まいの相談窓口 株式会社ヒイラギ建設 岡崎支店

0564-73-0500

お問い合せ番号: 11627407

所在地 〒444-0813 愛知県岡崎市羽根町字東荒子57番地 AR岡崎スクエア1階
営業時間 9:30~18:30 定休日 水曜日

新着お知らせ